ALTEK fabrica
tipo: parque industrial año: 2014 área: 9.380 m2 cliente: Altek
ubicación: Potrero Chico. Cota, Cundinamarca estado: construido



















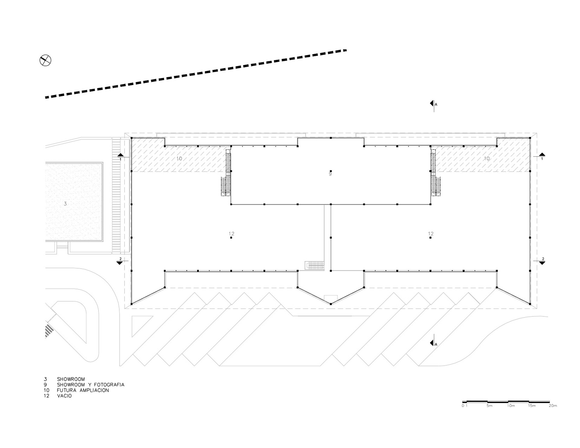
El proyecto consiste en un parque industrial a desarrollarse por etapas del cual este proyecto es la primera. Esta destinado a ser la nueva sede de una empresa que fabrica y comercializa muebles y herrajes, por eso se proyectó como un sistema de bodegas modulares flexible que pueda acoger múltiples ocupantes con necesidades de área diferentes dependiendo del desarrollo de la industria a futuro.
La implantación consiste en una vía central de acceso, maniobra y estacionamiento de tracto mulas flanqueada por 2 naves de bodegas y dos edificios exentos: el showroom y la cafetería general, esto permite minimizar las áreas de zonas duras de vías vehiculares concentrándolas, y con las edificaciones conformar un espacio central.
Todo el conjunto esta rodeado por un tratamiento paisajístico de zonas verdes, taludes y arborización para reforzar la situación campestre y aislarse de los vecinos.
La edificación se concibió creando una cubierta “flotante” que recuerda la forma de un ala de un pájaro o avión, y que con su forma ondulada dialoga con las formas de los cerros al fondo.
La percepción es la de un edificio liviano cuya cubierta “vuela” despegándose de la base posibilitando la entrada de luz natural hacia el interior y vista hacia el exterior desde las zonas de trabajo y oficinas de las bodegas.
La estructura de soporte esta modulada cada 8 x 8 mts, y deja áreas libres con luces de hasta 32 mts en las zonas abiertas.
Para cubrir el descargue, se proyectó un voladizo de 8 mts que se desarrolla sin apoyos en el borde y da la percepción de que la cubierta tuviera únicamente 2 luces de 48 mts cada una.
El volumen se compone entonces de una base cerrada en ladrillo de cemento negro y paneles de aluminio termo acústicos, un cuerpo transparente de estructura blanca y fachadas flotantes en vidrio transparente coronados por un remate de cubierta flotante termo acústica en aluminio.
Para reforzar la continuidad del espacio, las oficinas en un nivel superior se proyectan como un volumen suelto y flotante en medio de la gran nave a modo de mirador del paisaje circundante a través de las fachadas en vidrio de las bodegas.
Sobre las oficinas se genera un área de expansión futura que se usa hoy como estudio de fotografía de los muebles en diferentes ambientes para los catálogos de la empresa.
El proyecto cuenta a su vez con estrategias bioclimáticas y de sostenibilidad para bajo consumo energético. Se aprovecha en gran cantidad la luz natural norte y sur para las áreas de trabajo con las fachadas en vidrio, y se recibe tamizada por la cubierta la luz y radiación oriente-occidente para calentar controladamente el espacio con el efecto invernadero.
Se recolectan las aguas lluvias para su reutilización general en servicios, aseo y riego, los materiales utilizados son en su mayoría reciclables.
En cuanto a las etapas posteriores, el showroom se concibe como un cubo de vidrio que flota sobre un espejo de agua lluvia, que contiene 2 niveles de exhibición conectados por un puente con las oficinas existentes.
La cafetería y servicios comunales se relaciona con los exteriores, y la segunda nave de bodegas terminara de conformar el proyecto.