binario
tipo: edificio residencial año: 2016 área: 9.560 m2 cliente: Inversiones Bibo
ubicación: Antiguo Country, Bogotá estado: construido

























Fue determinante establecer una relación formal con el edificio de conservación de Enrique Triana que comparte el frente de manzana sobre la autopista norte, y que comparte ideas similares sobre el uso del ladrillo para los edificios de vivienda en Bogotá, y el concepto de volumen “pesado y vació”.
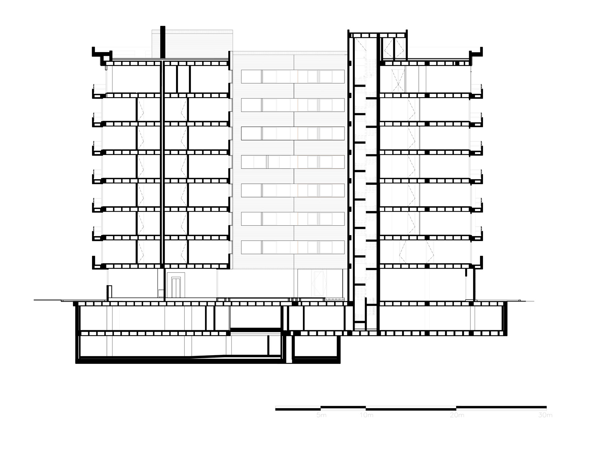
Son 3 torres de vivienda adosadas que ocupan 3 predios englobados. Se proyectaron inicialmente 2 torres relacionadas mediante un espacio ajardinado por la única fracción del aislamiento posterior donde se cruzaban los predios, una torre sobre la autopista con apartamentos de 1 alcoba y la segunda torre sobre el cul de sac con apartamentos de 3 alcobas de mayor formato con ascensor privado.
El tercer lote (esquinero) se vinculo al proyecto durante la fase de construcción, consideramos importante resaltar que este ultimo volumen, es el resultado de un proceso de adaptación al funcionamiento de lo ya edificado y las limitaciones normativas y exigencias del mercado en el sector.
Todos los apartamentos cuentan con terrazas corridas y ventanas piso techo para disfrutar de la vista, los arboles existentes y el parque. La cubierta es el gran espacio de reunión como una terraza jardín mirador de Bogotá y los cerros.