AG Residence 599 Glenridge Rd Key Biscayne
proyectos
estudio
índice
contacto
AG Residence 599 Glenridge Rd Key Biscayne
proyectos
estudio
índice
contacto
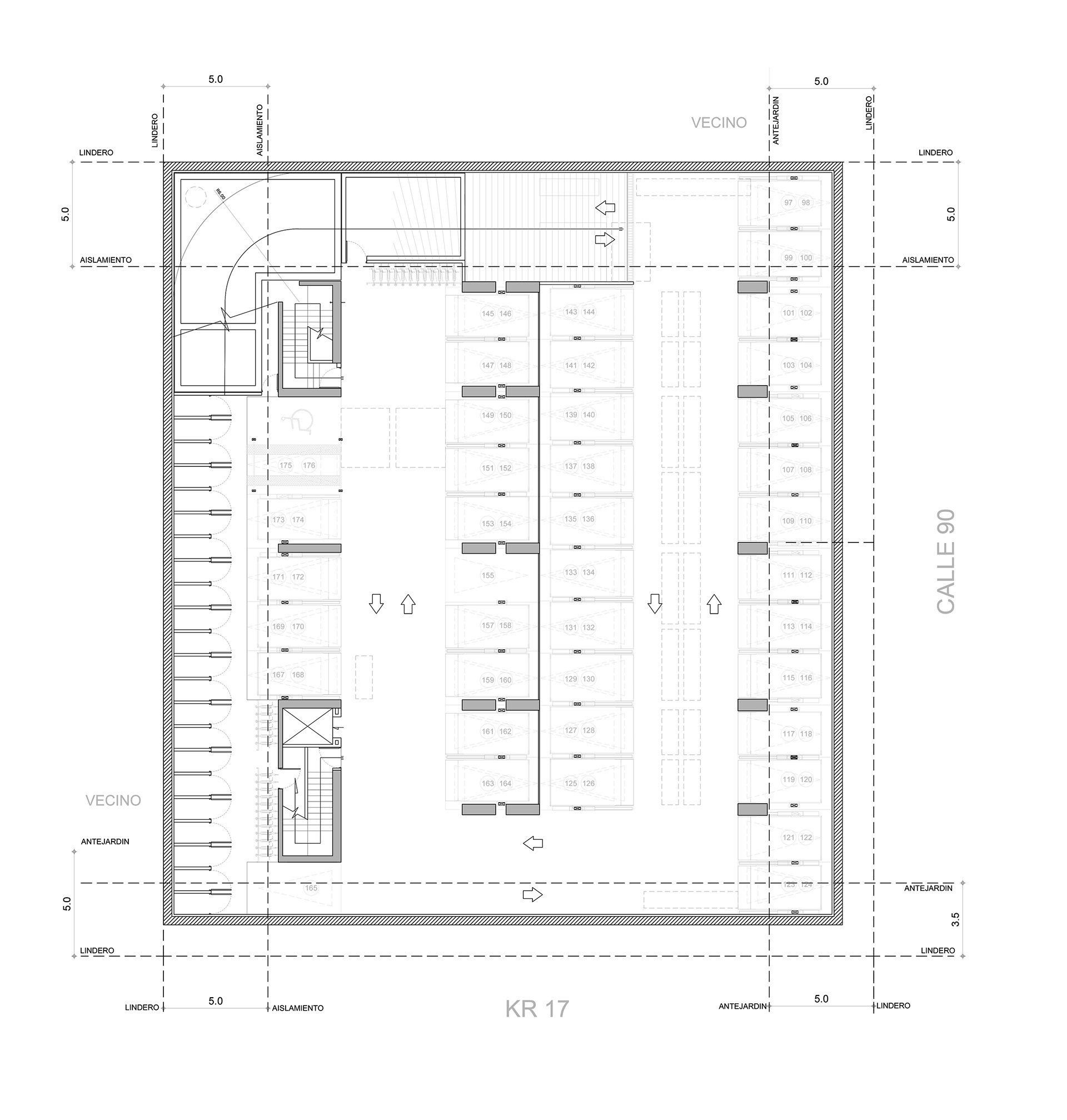
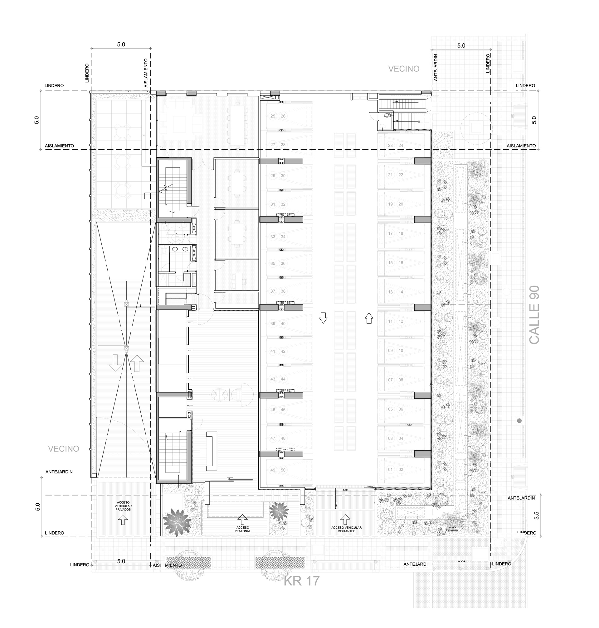
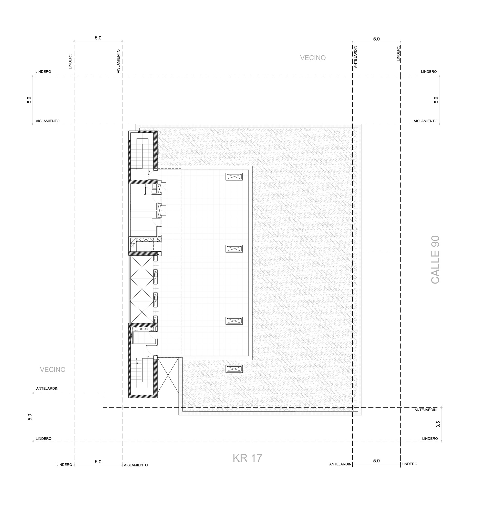
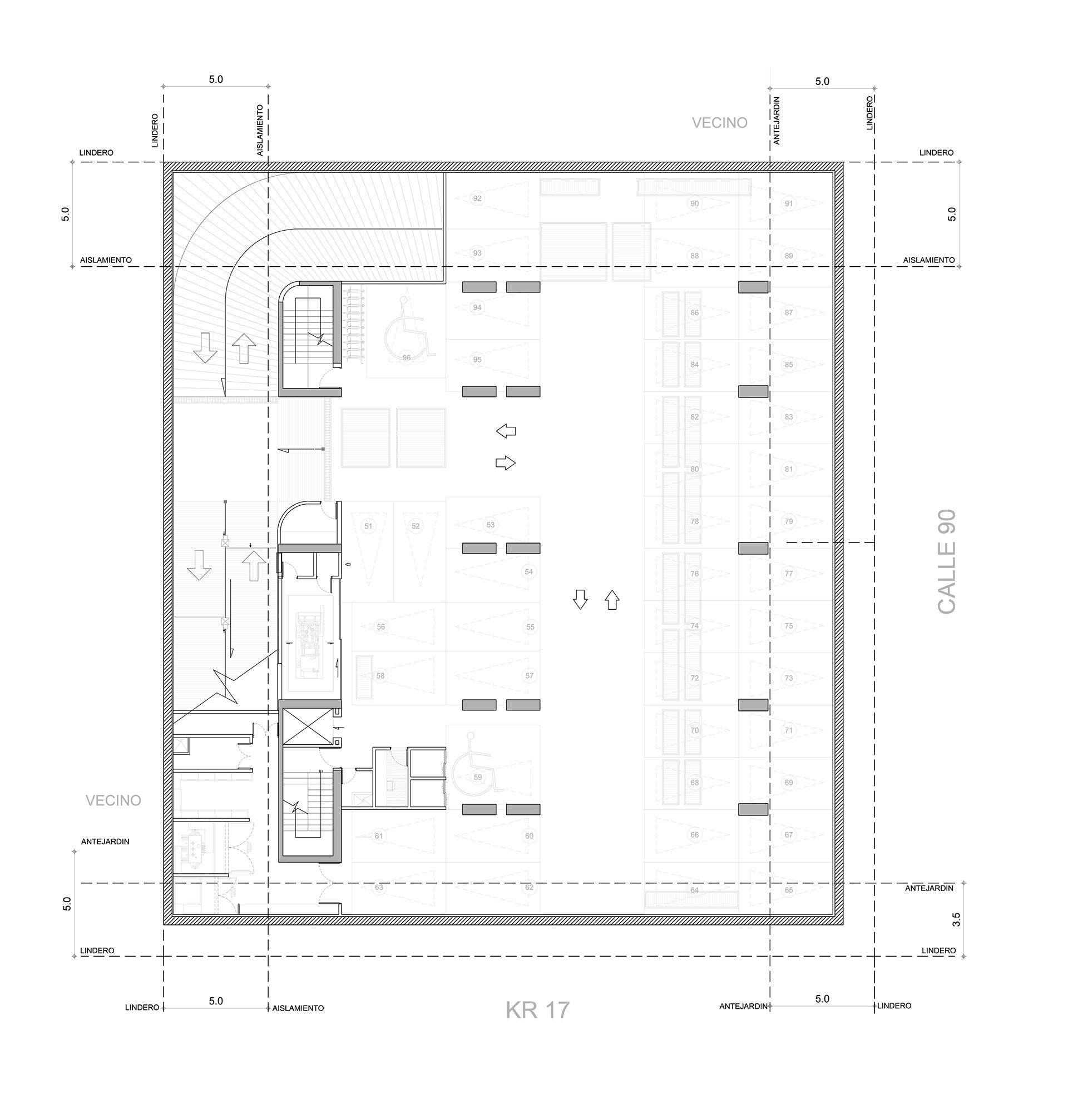
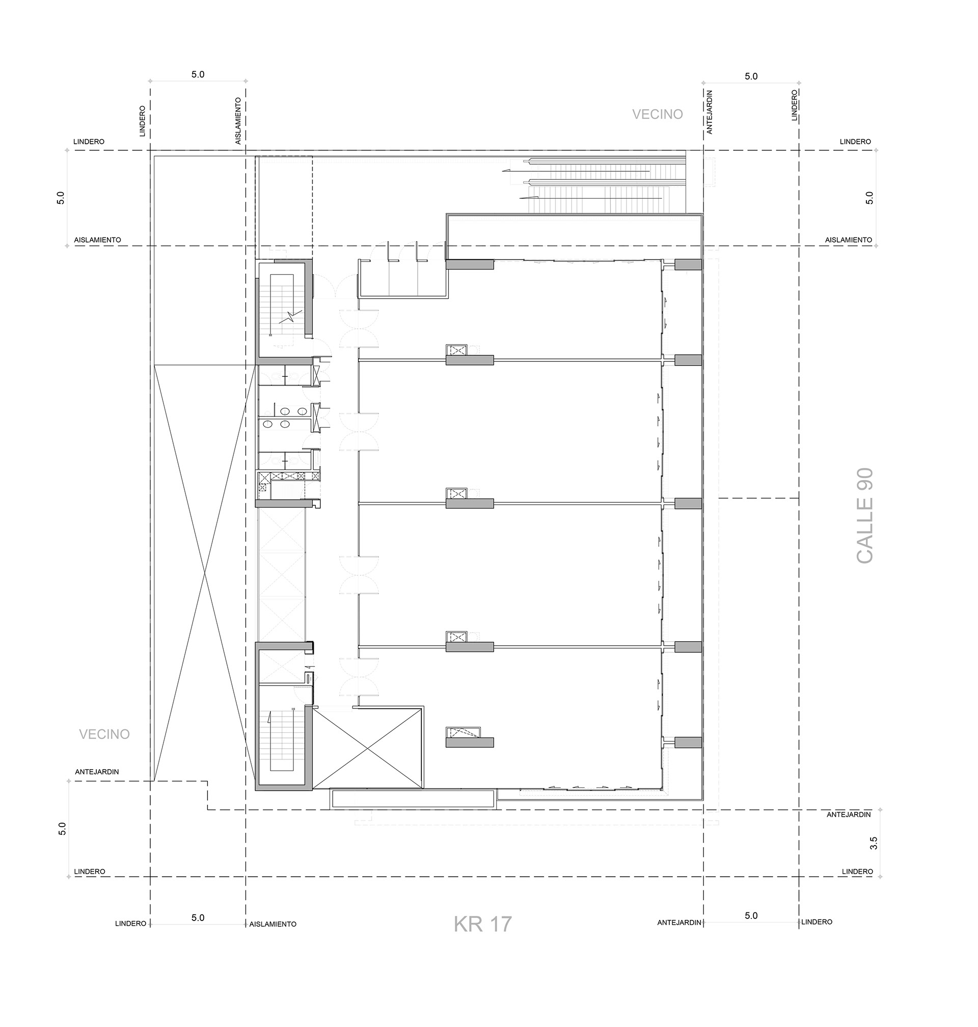
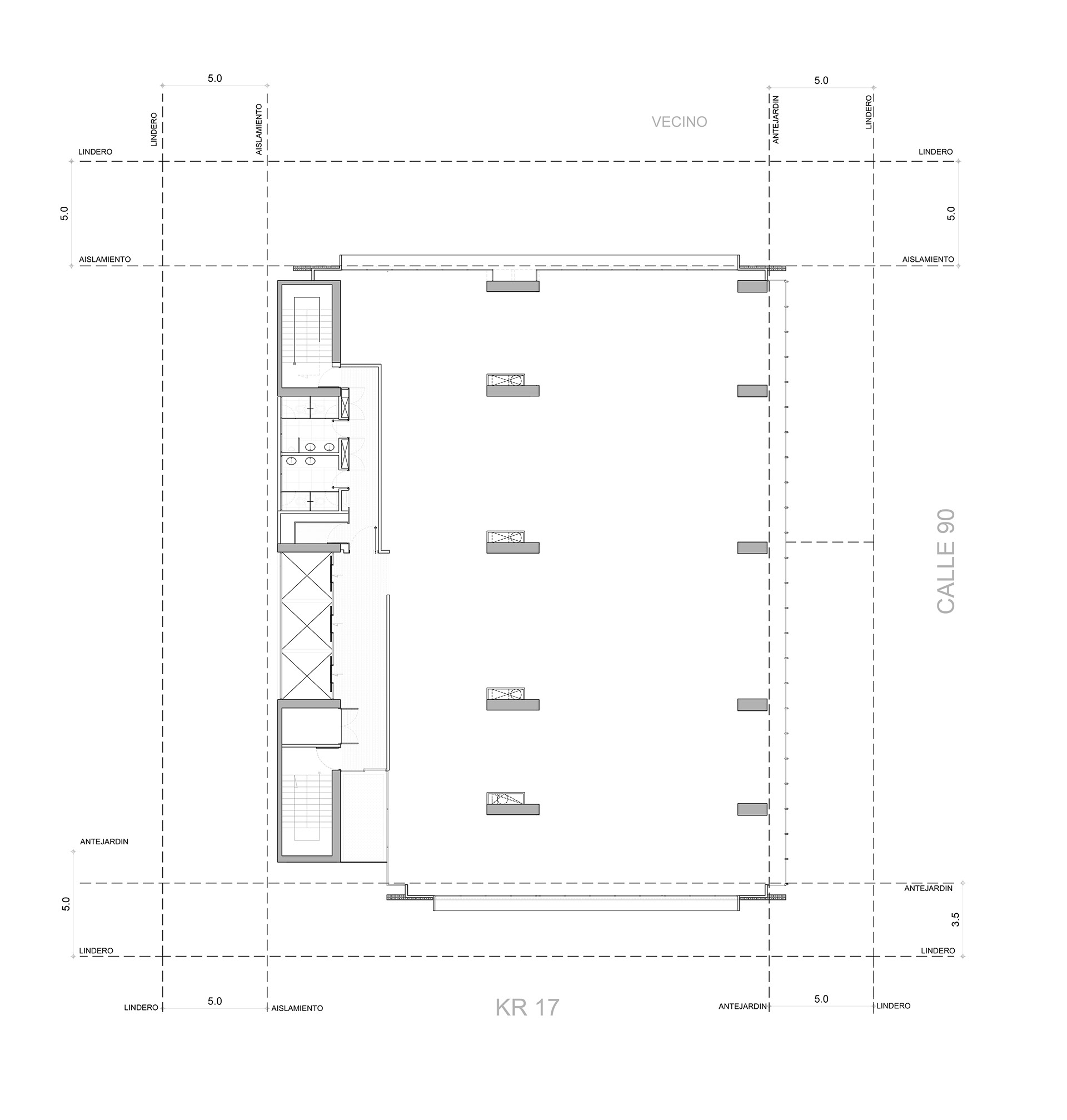
GAIA
tipo:
oficinas
año:
2017
área:
8.750 m2
cliente:
Inversiones Bibo
ubicación:
El Chicó, Bogotá
estado:
construido
↑