casa metálica
tipo: año: 2005 área: 138 m2
ubicación: Torca, Cundinamarca estado: construido

















En una localización rural privilegiada de los cerros orientales de difícil acceso, la vivienda se posa en el paisaje casi sin tocarlo enfatizando el entorno natural orgánico al contrastar con su forma pura geométrica creada por el hombre.
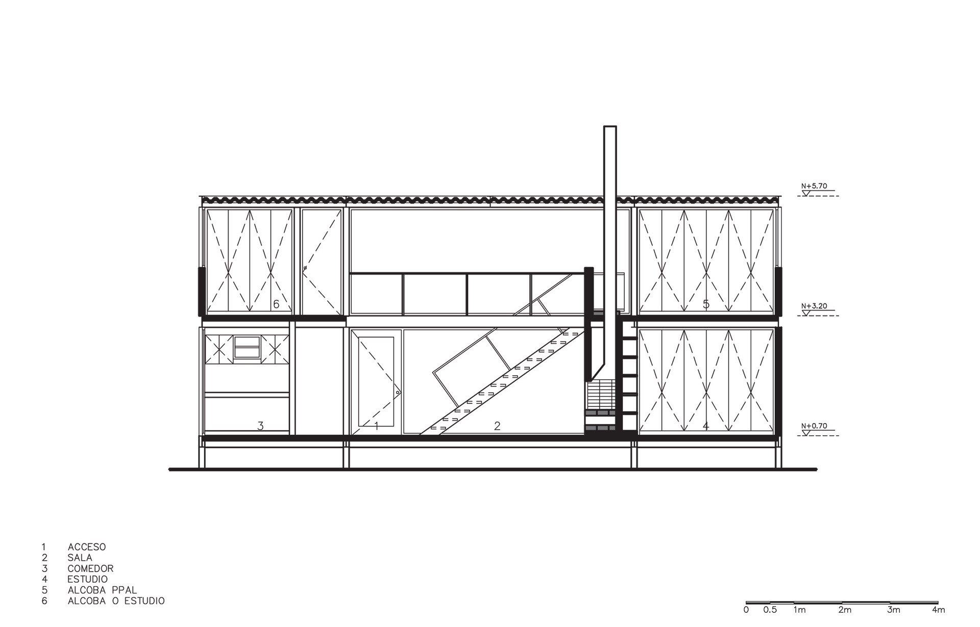
Las zonas privadas de habitaciones y servicios en los extremos son más cerradas y la zona social se abre como una transparencia continua desde la entrada hasta la terraza que vuela sobre el paisaje. es un volumen rectangular de 6x12mx6m, compuesto por vigas y columnas metálicas, steel deck y mampostería estructural.
Para confort térmico además de la correcta orientación y aislamiento, usa estrategias bioclimáticas como elevarse del suelo, chimenea central con buitrón abierto y color oscuro de las fachadas. recoge y reutiliza el agua lluvia. es una casa versátil con mínimos recursos, compacta, modular, económica y llegó lista para armar en un camión, se construyó en 4 meses.