AG Residence 599 Glenridge Rd Key Biscayne
proyectos
estudio
índice
contacto
AG Residence 599 Glenridge Rd Key Biscayne
proyectos
estudio
índice
contacto
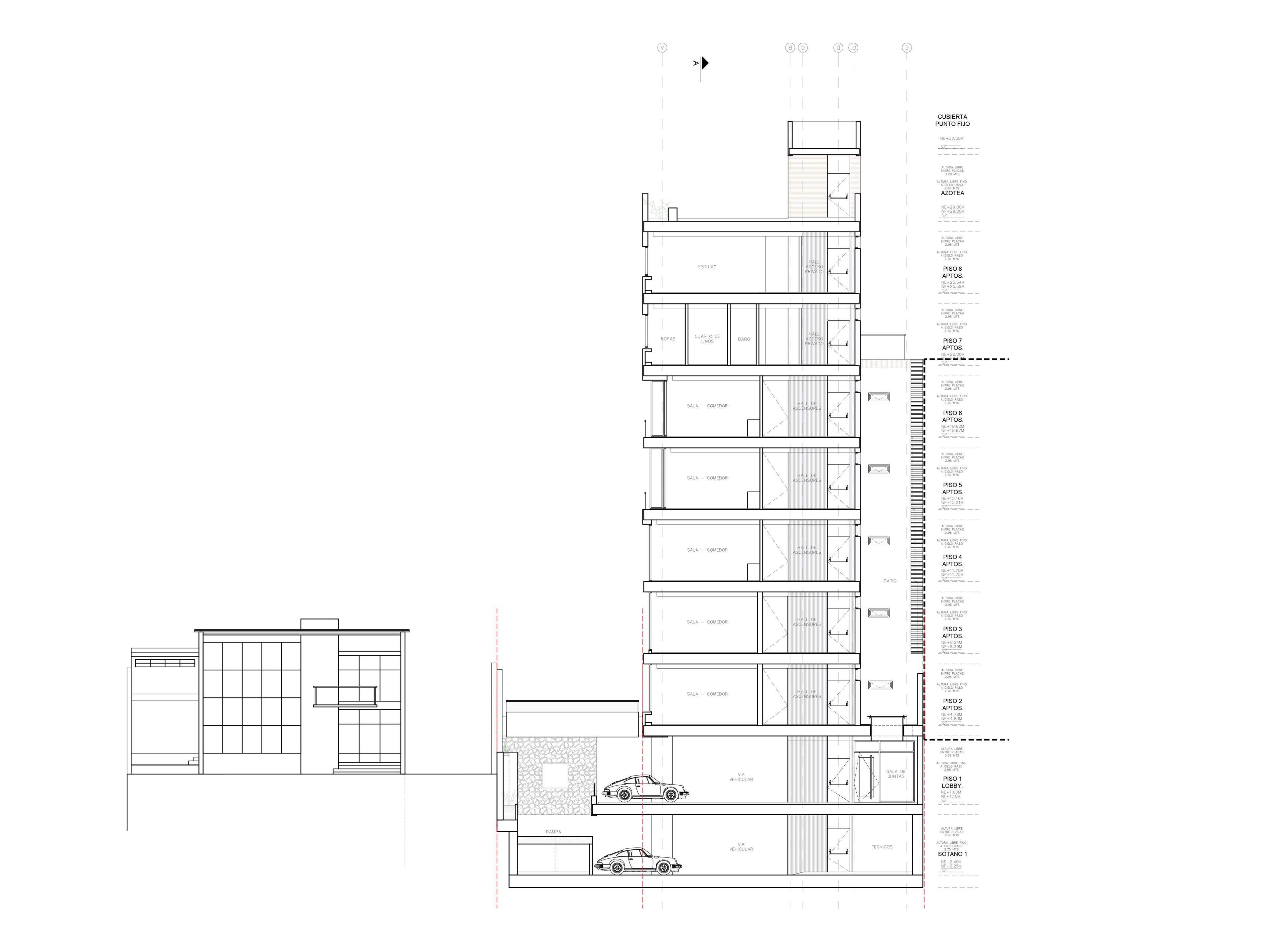
taller 6
tipo:
edificio residencial
año:
área:
3.195 m2
cliente:
Alinea
ubicación:
Los Rosales, Bogotá
estado:
en construcción
↑