green office

tipo: oficinas año: 2014 área: 31.435 m2 cliente: Pijao S.A
ubicación: Chicó Navarra, Bogotá estado: construido
El concepto es el de un edificio “verde” de arquitectura sostenible, que se abre a la dinámica urbana buscando relacionarse directamente con la ciudad y que esta participe de su interior. 
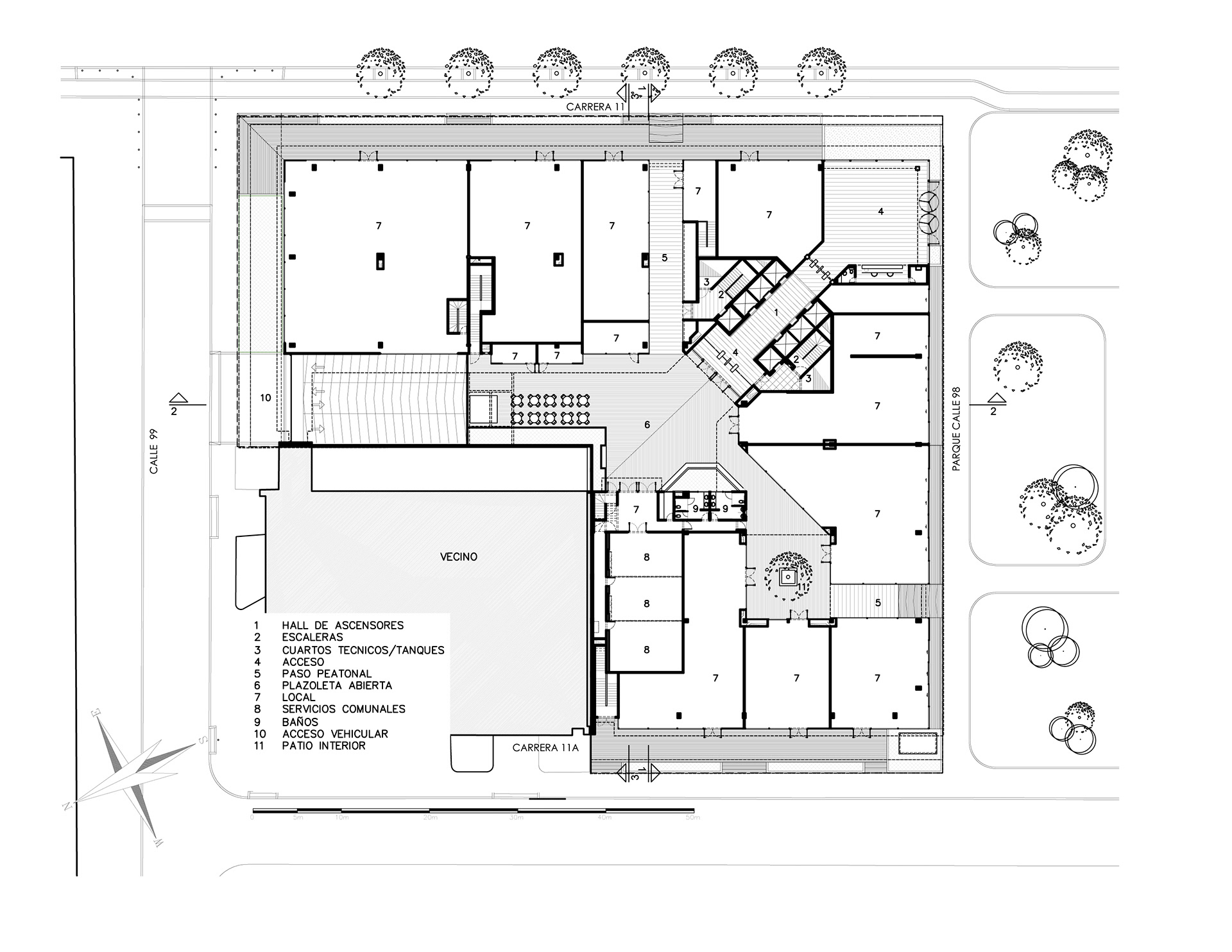
Localización privilegiada al nororiente de Bogotá en la esquina  de la Cra 11 y el Parque de la Calle 98. El edificio ocupa tres cuartas partes de una manzana con mucha presencia urbana y fachadas largas sobre el espacio público. 
Su primer piso es privado de uso público, con locales comerciales hacia las calles, el parque y el centro de manzana con una plazoleta y jardines al aire libre que funciona como un “pasaje” urbano. Los antejardines y el frente sobre el parque funcionan como terrazas de los locales comerciales. 
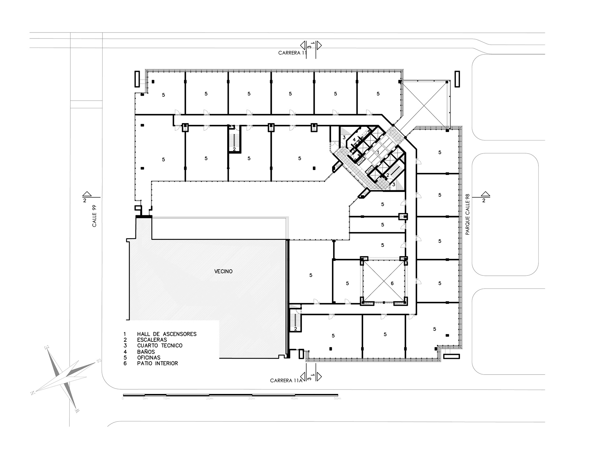
El lobby de 6 pisos de altura, “abierto” y transparente, permite que el hall de ascensores se convierta en un mirador de la ciudad, y que esta participe de lo que sucede al interior. Con el punto fijo conforma un centro compacto y eficiente para el acceso y trafico vertical.
El piso tipo tiene 2 zonas cada una de 1400 m2 que pueden unificarse para funcionar como un solo piso completo de 2800 m2, o áreas flexibles desde 100 m2. 
Área construida total 31.436 m2. 6 pisos de altura y 3 sótanos con 480 estacionamientos. Primer piso comercial de 2105 m2 y 5 pisos de Oficinas de 13.561 m2. Cumple con los requisitos para la certificacion Leed en la categoría Core and Shell.